主页 > 翻新案例 · 西安小夫妻爆改120㎡二手房!法式奶油风直接美到邻居来抄作业!
西安小夫妻爆改120㎡二手房!法式奶油风直接美到邻居来抄作业!
- 类型:整体翻新
- 风格:奶油风
- 面积:100㎡以上
- 预算:元
- 工期:天
- 区域:长安区
案例描述简介
FRENCH LUXURY旌致装饰&桔子设计120㎡法式奶油风婚房从 “丑小鸭” 变身成超治愈的法式奶油风婚房!改造全过程高能,每一处细节都美到想尖叫,快跟我一...
翻新服务优势
-
质量保证
-
五星服务支持
-
种类规格齐全
-
一站式服务
咨询热线:029-88850746
从 “丑小鸭” 变身成超治愈的法式奶油风婚房!改造全过程高能,每一处细节都美到想尖叫,快跟我一起来 “云参观”
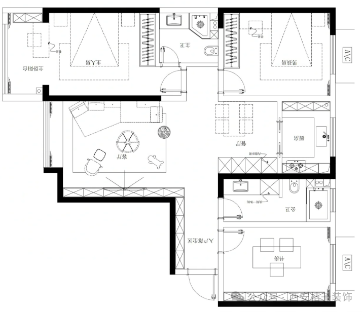
(改造户型图)
地址:西安富力城南区
面积:120㎡
风格:法式奶油风格
设计师:陈磊
改造需求:
翻新案例
独特的工艺,装出不一样的风格;6450个经典装修案例图展示
翻新攻略
海量装修翻新改造知识,帮助大家更快了解装修中的各种疑难问题
-
西安二手房装修细节必须要多多注意,不容忽
二手房装修,首先要根据基本条件进行设计。在设计前,还需充分了......
-
西安二手房翻新装修改造:小户型盯上了地面
又想要敞开式书房,又想保有独立性,很难两全,【旌致装饰】西安......
-
房屋装修室内有哪些设计风格 可以装修田园
人们在装修房屋的时候,可以选择的风格有简约风格等等,可以选择......
-
墙面装修什么材料好耐用?内墙装修最好选什
墙面装修什么材料好耐用?内墙装修最好选什么材料?对于墙面装修......
-
西安旧房翻新时插座安装好,装修后悔少!
作为电网配电侧的电动汽车充电桩(栓),其结构的特殊性决定了自......
-
西安老房子水电改造的常见问题
转眼之间,新能源汽车已经从不常见的实验品变成了穿梭于大街小巷......
扫码联系在线客服